
3-к, Канашская, 8 Показать на карте
Канаш
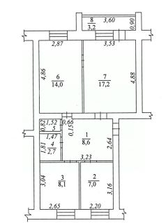
Предлагается к продаже прекрасная трехкомнатная квартира по адресу улица Канашская дом 8. Идеальное место для тех, кто ценит комфорт и спокойствие своего жилища. Расположена рядом с важными объектами инфраструктуры: поблизости находятся школа, детский сад, продуктовый рынок, универсальный магазин и даже Озон-пункт выдачи заказов. Это обеспечивает максимальную доступность всех необходимых услуг. Особое внимание заслуживает двор дома — ухоженный, тихий и приятный для прогулок с детьми или домашних животных. Просторная прихожая создает первое впечатление о квартире и служит удобным местом хранения вещей после прихода домой. Окна квартиры ориентированы сразу на две стороны света, благодаря чему внутри всегда достаточно естественного освещения днем. Планировка комнат позволяет свободно расставлять мебель и организовать пространство именно так, как удобно новым жильцам. Санузел разделён на два помещения, обеспечивая дополнительное удобство для семьи.Ремонт позволит вам воплотить любые идеи интерьера согласно вашему вкусу и предпочтениям. А наличие двух собственников упрощает процесс оформления сделки купли-продажи. Возможен показ объекта в удобное для вас время. Не упустите шанс стать владельцем такой прекрасной недвижимости, идеально подходящей для комфортной семейной жизни!Арт. 117076985
58 м2
2 / 5 этаж
Кирпич
- Показать контакты
- Добавить в избранное
58 м2
2 / 5 этаж
Кирпич
3 670 000
62 309 /м2