Продается производственная база площадью 1223 кв.м на земельном участке 29,87 соток (земля в собственности) в черте г.Чебоксары.
Развитая производственная зона с подведенными коммуникациями. Свободная транспортная доступность для всех видов транспорта. Возможность подъезда с города Чебоксары (со стороны Вурманкасов) и федеральной трассы. Круглосуточный доступ.
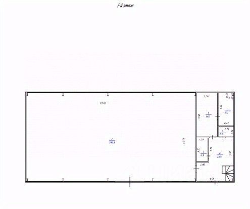
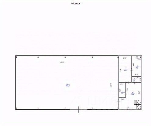
В стоимость входят: -производственный цех площадью 738,9 кв.м (2023 года постройки), -объект вспомогательного использования - склад с 2-этажной административной частью площадью 148,4 кв.м (2023 года постройки), -объект незавершенного строительства (производственный ангар) площадью 336 кв.
Продается производственная база площадью 1223 кв.м на земельном участке 29,87 соток (земля в собственности) в черте г.Чебоксары.
Развитая производственная зона с подведенными коммуникациями. Свободная транспортная доступность для всех видов транспорта. Возможность подъезда с города Чебоксары (со стороны Вурманкасов) и федеральной трассы. Круглосуточный доступ.
В стоимость входят: -производственный цех площадью 738,9 кв.м (2023 года постройки), -объект вспомогательного использования - склад с 2-этажной административной частью площадью 148,4 кв.м (2023 года постройки), -объект незавершенного строительства (производственный ангар) площадью 336 кв.м, -земельный участок 29,87 соток
Здания: 1) Производственный цех с кран-балкой площадью 738,9 кв.м с оборудованными кран-балками (2 кран-балки по 5 тонн). Есть встроенная антресоль с административными комнатами и раздевалками. 2) Административное здание со складским помещением площадью 148,4 кв.м. Располагаются офисные и вспомогательные помещения. 3) Производственный ангар (12х28 м) площадью 336 кв.м с административной частью.
Земельный участок. Площадь участка: 29,87 соток Категория земель: земли населенных пунктов, Производственная деятельность Покрытие: асфальт
Коммуникации: Электричество - собственная подстанция на 250 кВт. Вода - городская. Канализация - септики. Отопление - пеллетная система (котел).
Все дополнительные вопросы - по телефону! Звоните!