3-к, Ленина проспект, 53 Показать на карте
Ленинский район
Чебоксары
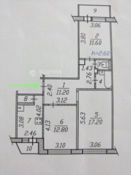
Предлагаем вашему вниманию светлую просторную трёхкомнатную квартиру общей площадью 73,4 кв.м., расположенную в самом центре города. В ней выполнен ремонт в светлых тонах, использованы качественные материалы.Санузлы раздельные, оборудованы современной сантехникой.Квартира распашная, потолки 3 м, что дает много света и воздуха, этаж 5 из 5, никто над головой не топчется. Подъезд чистый, дружелюбные соседи.Дом кирпичный, расположен в районе с развитой инфраструктурой: напротив находится хорошая школа 24, рядом детские сады (дом относится к садику 50), магазины и кафе, а также парки для прогулок и активного отдыха всей семьёй.Это идеальное предложение для тех, кто мечтает о комфорте и удобстве городской жизни. Звоните, отвечу на дополнительны вопросы. мебель частично остается, звоните покажем!В одобрении ипотеки по наиболее выгодным ставкам поможем.Арт. 91258552
73 м2
5 / 5 этаж
Кирпич
- Показать контакты
- Добавить в избранное
73 м2
5 / 5 этаж
Кирпич
7 199 000
98 079 /м2
