Универсальное помещение
П.В.Дементьева, 2 корп. 1 Показать на карте
П.В.Дементьева, 2 корп. 1 Показать на карте
Ленинский район
Чебоксары
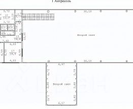
Продается помещение свободного назначения площадью 222 кв. м (полноценный первый этаж). Вся площадь сдана в аренду. Помещение расположено на первом этаже многоквартирного дома.Первый этаж с полноценными окнами!РАСПОЛОЖЕНИЕ ОБЪЕКТА: Расположен на первом этаже жилого многоквартирного дома. В шаговой доступности находятся остановки общественного транспорта, жилые многоквартирные дома, объекты социальной инфраструктуры.ХАРАКТЕРИСТИКА ОБЪЕКТА:ОБЩАЯ ПЛОЩАДЬ помещения — 222 кв.м.Помещение располагается на первом этаже жилого многоквартирного дома. Отдельная входная группа с улицы. Косметический ремонт.В настоящее время есть арендаторы.Центральное отопление, центральное водоснабжение, канализация.Подходит для размещения офиса, магазина, учебного центра,Готовый арендный бизнес, ГАБ. Все дополнительные вопросы — по телефону! Звоните!Арт. 128601024
222 м2
- Показать контакты
- Добавить в избранное
222 м2
26 640 000
120 000 /м2
